搜索
信网手机版移动继续看新闻

周边环绕小区临近地铁 青岛西海岸新区烟台路共享空间项目批前公告

信网11月17日讯 近日,“青岛西海岸新区”政务网发布关于烟台路共享空间项目规划许可批前公告,建设地点位于青岛市黄岛区,烟台路东侧,月亮湾路南侧,广城路西侧。全文如下。(信网记者)

关于烟台路共享空间项目规划许可批前公告

为加强公众参与,发挥公众在我区规划管理中的作用,提高城市规划水平,根据《中华人民共和国城乡规划法》、《山东省城乡规划条例》等法律、法规和政务公开的有关规定,对烟台路共享空间项目进行批前社会公告,欢迎社会各界提出意见和建议,现将有关事项通告如下:

一、公告项目基本情况:

1、建设单位:青岛西海岸公用事业集团有限公司

2、建设项目:烟台路共享空间项目

3、建设地点:青岛市黄岛区,烟台路东侧,月亮湾路南侧,广城路西侧

4、公告阶段:项目规划方案批前网上社会公告

二、公告项目规划方案主要内容:

1、设计概况:

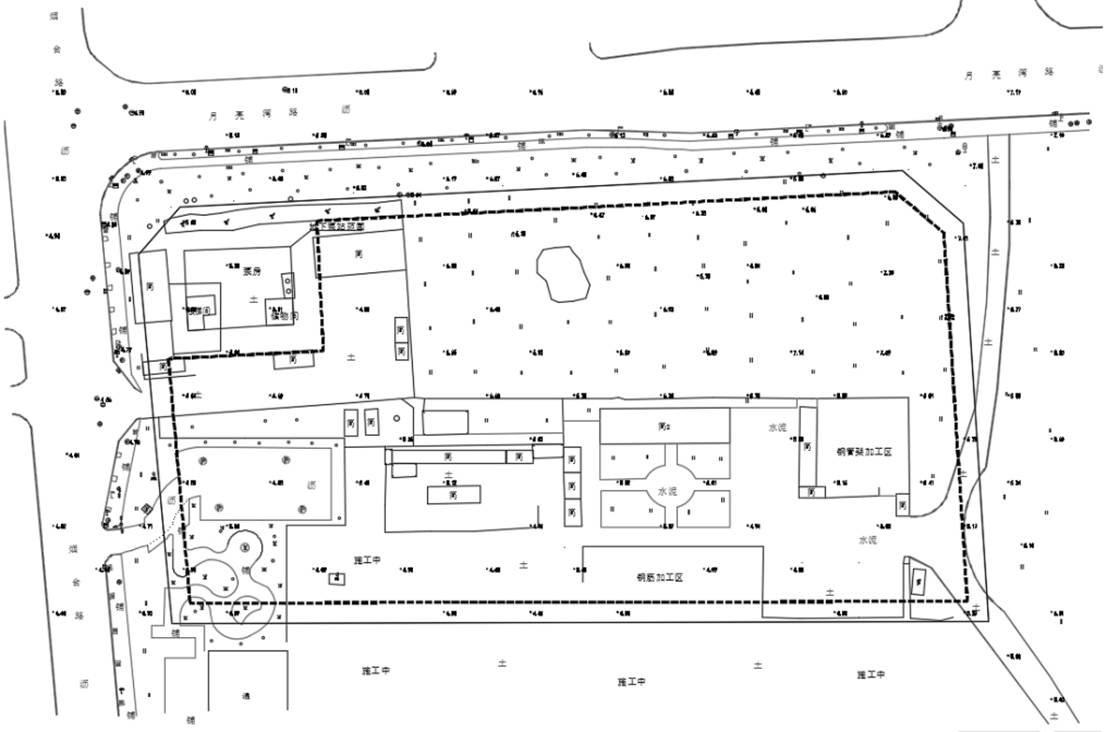
烟台路共享空间项目位于山东省青岛市黄岛区,西侧为烟台路,北侧为月亮湾路,东侧为广城路,南侧为在建小区。项目周边环绕住宅小区,西侧临近地铁13号线,南侧临近地铁6号线。

总用地面积:18810㎡,总建筑面积846㎡,其中地上计容面积846㎡。

2、主要经济技术指标:

3、规划地形图及现状图

4、规划总平面图及关键功能分析图:

5、规划鸟瞰图:

6、单体效果图:

三、公告及投票地点:

1、公告地点:黄岛区月牙河路77号(青岛海洋高新区政务服务大厅)、西海岸政务网及山东省青岛市黄岛区月亮湾路以南,烟台路以东项目现场入口公示牌公示。

2、投票地点:黄岛区月牙河路77号(青岛海洋高新区政务服务大厅)投票箱,请将意见和建议按规定填写后放入投票箱。意见票应附证明相关利害人身份的房地产权证复印件或购房合同复印件及身份证复印件,否则意见票无效。

四、咨询电话:

建设单位:代金锡 85160296

青岛海洋高新区规划建设部:85162572

五、公告时间:

2025年11月14日至2025年11月20日

青岛海洋高新区管委规划建设部

2025年11月13日

[来源:信网 编辑:陆云琦]
信网版权稿件,转载请联系信网获取授权(邮箱:news@qdxin.cn),未经许可不得转载。
精彩美图 更多 >>
2025 11/17 10:55
· 来源 ·
信网
· 责编 ·
陆云琦
阅读量
扫描到手机
用手机或平板电脑的二维码应用拍下左侧二维码,可以在手机继续阅读。

青岛话题 更多 >>

深度报道 更多 >>

大家爱看

信网手机版

信网小程序

青岛网上辟谣平台

AI调解员

Copyright © 2014-2025 信网 All rights reserved. 鲁ICP备14028146号-1 互联网新闻信息服务许可证:37120180021 增值电信:鲁B2-20180061 鲁公网安备:37020202000005号
手机版 | 媒体资源 | 信网传播力 | 关于信网 | 广告服务 | 人才招聘 | 联系我们 | 版权声明| 违法和不良信息举报